Villa singola in vendita

Santa Maria Capua Vetere, Via Beato Bartolo Longo - S.maria Capua Vetere Sud
€ 720.000
6 locali 6 locali
340 Mq 340 Mq
5 bagni 5 bagni

Villa singola in vendita

Santa Maria Capua Vetere, Via Beato Bartolo Longo - S.maria Capua Vetere Sud

Descrizione annuncio

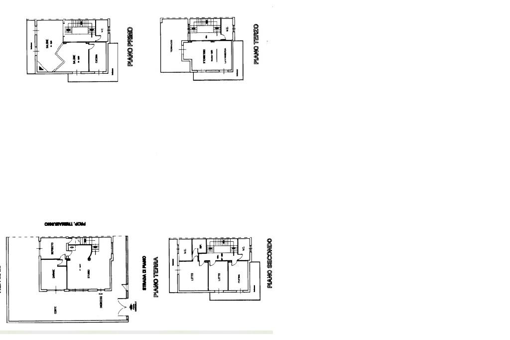
Moderna villa con ampi spazi.

L'agenzia Tecnorete propone la vendita esclusiva di una moderna ed elegante villa su più livelli con spazio esterno, recentemente ristrutturata.

L'immobile si trova in una zona residenziale caratterizzata da ville e palazzi poco distanti dalla nazionale Appia, via F. Ardeatine e via Escrivà, dove sono presenti i principali servizi e attività commerciali.

L'ingresso alla villa è sia pedonale che carrabile nell'ampio cortile, 200mq, sia parcheggio; che spazio esterno pavimentato e arredato, una moderna fontana e angolo verde, da sfruttare durante le belle e calde giornata dove far giocare liberamente i più piccolo o amici a quattro zampe.

Ingresso nell'elegante soggiorno dove ben risalta la semplice ed elegante vetrata che divide l'ambiente dalla cucina, la scala che conduce ai piani superiori, composta da parquet, lastre in vetro e poggia mani in acciaio, ben armonioso con il tappeto di erba presente sotto il vetro presente ai piedi delle scale ( predisposizione per l'ascensore). Gioiello del salone il camino 3d, le fiamme hanno un effetto realistico donando all'ambiente confort e armonia che ben completa il luminoso ambiente grazie alle piacevoli e pratiche vetrate che conducono all'esterno e proseguono anche nella cucina.

L'ambiente che più si vive in casa è la cucina quindi si desidera un ambiente luminoso, funzionale e comodo infatti è presente una moderna cucina con isola (compresa nel prezzo) con ampia tavola e le vetrate favoriscono l'accesso diretto allo spazio esterno. Al piano terra sono presenti il bagno e una lavanderia.

Il I° piano è dedicato ad una camera matrimoniale padronale con doppio affaccio sulle balconate presenti; ben rifinita e studiata nei minimi dettagli. Domina l'ambiente la vasca idromassaggio che per la sua forma tonda ben si abbina con gli arredi presenti, un angolo relax dove godersi un buon libro o semplicemente vedere il programma che si preferisce in tv; cabina armadio e bagno. Dettaglio sul letto è la finestra che affaccia sulla scala interna.

Al II° piano sono presenti: camera matrimoniale con cabina armadio e bagno; camera matrimoniale, cameretta e bagno.

Utimo piano (impianto con caldaia indipendente dal resto della villa) presente un altro ambiente mansardato con bagno accesso sul terrazzo a livello. La villa recentemente ristrutturata impianto videosorveglianza, impanti fan coil caldo/ freddo, infissi pvc.

Contattaci per ulteriori info o fissa il tuo appuntamento, offriamo la consulenza mutuo gratuita. 08231464601.

Comuni limitrofi: San Prisco, San Tammaro, Curti, Capua, Marcianise, Macerata Campania.

Seguici sulle nostre pagine social Facebook e Instagram: tecnorete Santa Maria C. V.

Mostra tutto

Nelle vicinanze

Trasporto pubblico Trasporto pubblico
Santa Maria Capua Vetere
Santa Maria Capua Vetere
1,4 Km
BusStop CLP & Private bus
BusStop CLP & Private bus
920 m
Santa Maria Capua Vetere - Corso Aldo Moro
Santa Maria Capua Vetere - Corso Aldo Moro
1,3 Km
Anfiteatro
Anfiteatro
2,1 Km
Scuole Scuole
Istituto Comprensivo G. Mameli - Scuola Primaria
760 m
Istituto Comprensivo "Marco Polo"
760 m
Istituto Comprensivo "MAMELI"
880 m
Liceo Classico Cneo Nevio
950 m
Dipartimento di Giurisprudenza - Palazzo Melzi
1,1 Km
Farmacia Farmacia
Farmacia
440 m
Farmacia Giffoni
660 m
Farmacia Gravino
1,0 Km
Ospedali Ospedali
Ospedale San Giuseppe e Melorio
590 m
Supermercati Supermercati
Conad
230 m
Lidl
330 m
Decò
590 m
Penny
790 m
SuperEmme
900 m
Negozi Negozi
OVS
290 m
' M & N S.r.l. '
1,0 Km
Nola Fashon S.R.L.
1,0 Km
United Colors of Benetton
1,0 Km
Prodomo Outlet
1,0 Km
Bar Bar
Bar Principio Carmine
710 m
Ruzicka
860 m
La Boutique del Pane
900 m
Gran Caffè Garibaldi
1,0 Km
Bar Tazza D'Oro
1,0 Km
Ristoranti Ristoranti
Codice Rossi
550 m
PerBacco
600 m
Il Sapore del Successo!
610 m
Pizzeria La Loggetta
1,1 Km
Ó Vicariell Paninoteca
1,1 Km
Mostra tutto

Caratteristiche

Rif.:
60955202
Piano:
3 di 3 (Piano su più livelli)
Posti auto:
3
Balconi:
5
Terrazzi:
4
Camere da letto:
4
Mostra tutto
Prezzo Prezzo
€ 720.000
Rata mutuo Rata mutuo
€ 3.393 / mese
Spese annue Spese annue
€ 0
Proponi il tuo prezzoProponi il tuo prezzo

Classe Energetica

E
E
E
E
E
E
E
E
E
EP globale non rinnovabile:
342.22 kW h/m² anno
EP globale rinnovabile:
342.22 kW h/m² anno
EP invernale del fabbricato:
EP estiva del fabbricato:
Anno di costruzione:
1995
Riscaldamento:
Autonomo
Tipo impianto:
A radiatori
Tipo alimentazione:
Altro

Ti interessa visionare l'immobile?

Fissa un appuntamento  Fissa un appuntamento

Richiedi informazioni

Clicca su Leggi per aprire l'informativa
* Questi campi sono obbligatori

Calcola il tuo mutuo

Semplice e senza impegno
Anticipo

( % )
Mutuo

( % )

pochi semplici passi

inserisci i tuoi dati
Questionario completato
Grazie per aver richiesto un appuntamento senza impegno con un nostro Consulente del Credito e Assicurativo.

Hai inserito correttamente tutti i dati necessari e a breve riceverai una e-mail con un link da convalidare per inviare i tuoi dati.
Affiliato
Tecno 3D Srl
Viale Kennedy, 73/75 81055 Santa Maria Capua Vetere (CE)

Il nostro staff


  • Diego Di Costanzo
    Affiliato

  • Maila Creo
    Collaboratrice
Viale Kennedy, 73/75 81055 Santa Maria Capua Vetere (CE)
Zona: Santa Maria Capua Vetere
Mostra su mappa
Orari: dal Lunedì al Venerdì 09:00-13:00 16:00-20:00 Sabato 09:00-13.00
Affiliato
Tecno 3D Srl
Viale Kennedy, 73/75 81055 Santa Maria Capua Vetere (CE)

2026 Tecnocasa Franchising S.p.A. - P. IVA 08365160152 - Via Monte Bianco 60/A 20089 Rozzano (MI). Ogni agenzia ha un proprio titolare ed è autonoma. Privacy policy | Policy utilizzo | Cookie policy